Valuation
3 Bedroom Semi-Detached For Sale in Lymefield Grove, Mile End, Stockport, SK2 6ER - Stockport Estate Agency, Hazel Grove, Great Moor, Offerton, Heaviley, Mile End, Woodsmoor, Davenport, Marple, Stockport, Cheshire Estate Agency

3 Bedroom Semi-Detached For Sale   |   Lymefield Grove, Mile End, Stockport, SK2 6ER   |    £400,000

Summary

Nestled in a cul-de-sac in the well regarded area of Mile End, approximately half a mile from Davenport Village, this ATTRACTIVE THREE BEDROOM SEMI DETACHED HOME presents an enticing opportunity for families and professionals alike. Number 11 balances period charm with contemporary comforts in an elegant and inviting setting.

Approaching number 11, you will see the driveway to the front, a lawn area to the side with three Rowan Trees. There is a shared drive to the side which leads to the rear garden accessible by a gate. More about that later.
Walk up to the front door set beneath a handsome brick archway which creates a storm porch.

Step inside, and the entrance hall greets you with laminate flooring offset by the neutral décor. Stairs lead to the first floor. A door to the left opens into the elegantly styled living room through dining room which opens to the rear to a sun room, a versatile room; a lovely space that effortlessly bridges the comfort of the indoors with the beauty of the garden. Whatever the season, this exceptional room serves as a summer retreat or a snug winter haven, providing a picturesque backdrop.

The extended kitchen is rather spectacular; designed and fitted by local firm, Prescott and Joule. The kitchen, flooded by natural light by way of the roof lights and windows, is a modern and stylish space which needs to be viewed to be more fully appreciated.

Upstairs, off the landing, you will find three bedrooms and the luxury re-fitted bathroom with a large separate shower cubicle. Refresh, relax and revive in this very stylish bathroom.

Outside to the rear, you will find the wonderful garden. This tropically themed haven is more than just outdoor space; it"s the vendors' very own sanctuary, designed for rest and rejuvenation amidst lush greenery. The area to the rear is staged, tropical style to feature a gazebo, (which currently features a garden dining area), a barbecue area and an open patio area.

Davenport station is approximately half a mile away, connecting the area directly with Stockport and further afield to Manchester, while a collection of shops, bars, coffee shops and restaurants ensure convenience and plenty of social options. Nearby schools, including Stockport Grammar, make this an ideal spot for families. Quick access to commuter routes further supports busy modern lifestyles.

We are sure you will want to explore number 11 for yourself and we look forward to hearing from you.


  • Attractive Period Semi Detached Home
  • Through lounge/diner
  • Stylish stunning bespoke kitchen
  • Tropical themed rear garden
  • Cul-de-sac location
  • Three Bedrooms
  • Sun room/ snug
  • Superb luxury bathroom/ shower
  • Drive
  • Approx half mile from Davenport Village

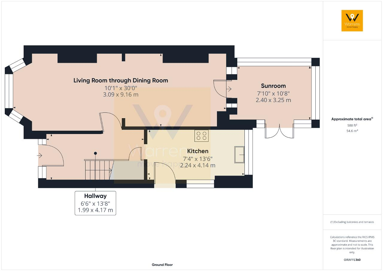
Ground Floor

Storm porch

Door opening to the entrance hall.

Entrance Hall

6' 6'' x 13' 8'' (1.99m x 4.17m) Laminate floor. Spindle balusstrade staircase to the first floor. Understairs cupboard. Radiator. Composite front dooe with inset patterned glass. Window to each side with patterned glass. Door to the living room through to the dining room. Door to the kitchen.

Kitchen

7' 4'' x 13' 6'' (2.24m x 4.14m) The extended kitchen is rather spectacular; designed and fitted by local firm, Prescott and Joule. The kitchen, flooded by natural light by way of the roof lights and windows, is a modern and stylish space which needs to be viewed to be more fully appreciated.

Living Room Through to the Dining Room

10' 1'' x 30' 0'' (3.09m x 9.16m) Living Area
UPVC double glazed bay window to the front. Radiator.
Floating gas living flame effect fire. Picture rail. Cornice. Opening to:-

Dining Area
Vertically fitted designer style radiator. Picture rail. Cornice. French doors to the sun room.

Sun Room

7' 10'' x 10' 7'' (2.4m x 3.25m) A versatile room; a lovely space that effortlessly bridges the comfort of the indoors with the beauty of the garden. With the benefit of a fitted radiator, whatever the season, this exceptional room serves as a summer retreat or a snug winter haven, providing a picturesque backdrop.

Laminate floor. UPVC patio doors opening to the rear garden.

First Floor

First Floor Landing

2' 5'' x 8' 4'' (0.75m x 2.55m) A spindle balustrade staircase leads up to the first floor. Double glazed window to the side aspect. Picture rail. Loft access point.

Bedroom

8' 10'' x 15' 11'' (2.7m x 4.87m) Double glazed bay window to the front aspect. Fitted wardrobes. Picture rail. Radiator.

Bedroom

10' 8'' x 14' 5'' (3.27m x 4.41m) Double glazed half bay window to the rear aspect. Radiator. Laminate flooring.

Bedroom

6' 8'' x 7' 10'' (2.05m x 2.39m) Double glazed window to the front aspect. Radiator. Laminate flooring.

Bathroom / W.C.

6' 10'' x 9' 6'' (2.11m x 2.92m) Fitted with a modern four piece suite comprising tiled bath with wall mounted taps. Low level W.C. with push button flush. Wall mounted wash basin with vanity storage. Separate shower cubicle with dual shower heads. Tiled floor and walls. Heated towel rail. Two double glazed windows. Ceiling spotlights.

Exterior

Outside

Outside to the front there is a driveway and an area of lawn area to the side with three Rowan Trees. There is a shared drive to the side which leads to the rear garden accessible by a gate.

Outside to the rear, you will find the wonderful garden. This tropically themed haven is more than just outdoor space; it's the vendors' very own sanctuary, designed for rest and rejuvenation amidst lush greenery. The area to the rear is staged, tropical style to feature a gazebo, (which currently features a garden dining area), a barbecue area and an open patio area.

Additional Information

Tenure - Freehold Subject to perpetual yearly rentcharge of £5.
Council Tax Band:D Annual Price: £2,475
Conservation Area No
Flood Risk Very low

For further information on this property please call 0161 260 0444 or e-mail [email protected]

Share this property

EPC Graph

Administration Fees

Summary

Nestled in a cul-de-sac in the well regarded area of Mile End, approximately half a mile from Davenport Village, this ATTRACTIVE THREE BEDROOM SEMI DETACHED HOME presents an enticing opportunity for families and professionals alike. Number 11 balances period charm with contemporary comforts in an elegant and inviting setting.

Approaching number 11, you will see the driveway to the front, a lawn area to the side with three Rowan Trees. There is a shared drive to the side which leads to the rear garden accessible by a gate. More about that later.
Walk up to the front door set beneath a handsome brick archway which creates a storm porch.

Step inside, and the entrance hall greets you with laminate flooring offset by the neutral décor. Stairs lead to the first floor. A door to the left opens into the elegantly styled living room through dining room which opens to the rear to a sun room, a versatile room; a lovely space that effortlessly bridges the comfort of the indoors with the beauty of the garden. Whatever the season, this exceptional room serves as a summer retreat or a snug winter haven, providing a picturesque backdrop.

The extended kitchen is rather spectacular; designed and fitted by local firm, Prescott and Joule. The kitchen, flooded by natural light by way of the roof lights and windows, is a modern and stylish space which needs to be viewed to be more fully appreciated.

Upstairs, off the landing, you will find three bedrooms and the luxury re-fitted bathroom with a large separate shower cubicle. Refresh, relax and revive in this very stylish bathroom.

Outside to the rear, you will find the wonderful garden. This tropically themed haven is more than just outdoor space; it"s the vendors' very own sanctuary, designed for rest and rejuvenation amidst lush greenery. The area to the rear is staged, tropical style to feature a gazebo, (which currently features a garden dining area), a barbecue area and an open patio area.

Davenport station is approximately half a mile away, connecting the area directly with Stockport and further afield to Manchester, while a collection of shops, bars, coffee shops and restaurants ensure convenience and plenty of social options. Nearby schools, including Stockport Grammar, make this an ideal spot for families. Quick access to commuter routes further supports busy modern lifestyles.

We are sure you will want to explore number 11 for yourself and we look forward to hearing from you.

Key Features


  • Attractive Period Semi Detached Home
  • Through lounge/diner
  • Stylish stunning bespoke kitchen
  • Tropical themed rear garden
  • Cul-de-sac location
  • Three Bedrooms
  • Sun room/ snug
  • Superb luxury bathroom/ shower
  • Drive
  • Approx half mile from Davenport Village

Share this property

Rightmove Zoopla Ombudsman