Valuation
3 Bedroom Detached For Sale in Chepstow Drive, Hazel Grove, Stockport, SK7 4RY - Stockport Estate Agency, Hazel Grove, Great Moor, Offerton, Heaviley, Mile End, Woodsmoor, Davenport, Marple, Stockport, Cheshire Estate Agency

3 Bedroom Detached For Sale   |   Chepstow Drive, Hazel Grove, Stockport, SK7 4RY   |   Guide Price £350,000

Summary

Situated on the well regarded "Racecourse" development in Hazel Grove, number 30, a well presented THREE BEDROOM LINK DETACHED HOME, offers a fantastic opportunity to put your own touch on a much loved and cared for family home.

For around three decades, this three-bedroom link detached home has been a cherished haven; the pride and joy of its owners and caring guardians. It is now ready for its next chapter, a special place which you could call home and create memories.

Come in! Step into the spacious porch which is handy to deposit an assortment of things; from coats and shoes to prams and children"s bikes!

Cross the threshold into the entrance hallway with staircase leading to the first floor. The hall is a gateway to the spacious living room to the rear or to kitchen to the front. Also off the hall, there is a downstairs w.c.

The dining room is situated to the front and can be accessed from the kitchen or the living room. Visionaries, when you see the floor plan, you might explore the option of uniting the kitchen with the dining space for an impressive open-plan layout.

To the rear of the living room, the conservatory is a versatile space. It is a light, bright retreat that takes full advantage of garden views, perfect for leisurely summer afternoons or cosy winter evenings alike. It is a lovely spot for a morning brew or unwinding in the day or evening come rain or shine.

Back to the hall now. Head up the stairs to the landing with doors to the three well proportioned bedrooms. The third bedroom stands out with its unusually spacious proportions, offering more space than most. Also on the first floor you will find the modern shower room/w.c. with a stylish contemporary wet wall finish.

Throughout, the layout feels both flexible and practical.

Now to explore outside. Externally, the front of the home features a concrete imprinted driveway which runs alongside a front garden with shrubs and plants.

To the rear, discover a lovely south-facing garden designed with low-maintenance living in mind. Artificial lawn ensures a lush green outlook throughout the seasons, complemented by thoughtfully arranged slate beds. There"s an abundance of potential for enthusiastic gardeners or those looking to personalise their outdoor haven;simply add pots and shrubs to introduce splashes of colour, texture, and create striking focal points to enjoy sunny afternoons. The south-facing aspect is perfect for those who relish basking in the natural light, whether entertaining or unwinding in tranquillity.

The property is within easy reach of the many amenities of Hazel Grove, transport links and schools. A small parade of shops including a convenience store, for those every day essentials, are situated a stroll away on Chepstow Drive.

Nature lovers and the outdoorsy types are spoiled for choice: Torkington Park can be found a mile away, ideal for a weekend walk or a spell on the playground, whilst the National Trust's Lyme Park is around five miles and promises stunning expanses for adventure and discovery amid beautiful countryside scenery.

This is a wonderful opportunity to acquire a long admired home in a well regarded location. We look forward to hearing from you.


  • Link Detached Home
  • Good size living room
  • Conservatory
  • Downstairs W.C.
  • Walk-In shower room
  • Three well proportioned bedrooms
  • Separate dining room
  • Kitchen
  • Storage
  • Front & rear gardens

Location

Tenure: Freehold subject to an annual rentcharge of circa £18 per year
EPC: C
Council Tax: D
Flood Risk: Very Low
Mobile and broadband available dependent upon provider.
Please note: Material Information has been sourced from 3rd party sources. We recommend that you seek verification yourself too, of course.
Material Information: Any Information added by us has been obtained from Land Registry or Sprift, who in turn collect their information from The Land Registry and Local Government sources when relevant. We strongly advise before purchasing you check this data is correct as we cannot be held responsible for displaying the sourced information which may then turn out to be incorrect. Instances of incorrect information may be where the Land Registry has a time lag and the owner of a property has purchased the Freehold but this has not been registered yet, or where the details of the Leasehold are not obvious on the Land Registry. Human error can also account for information being incorrect and we are unable to verify if the data is correct due to how the Land Registry works. Please note, some websites might block our attempts to provide you with links to the relevant information sources, so please contact our office if you need these.

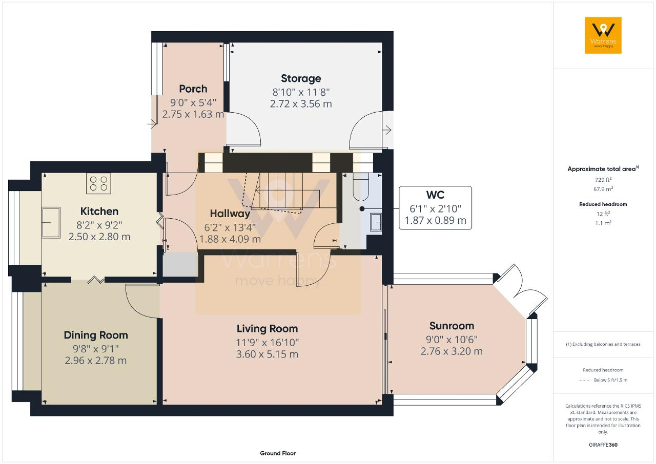
Ground Floor

Porch

9' 0'' x 5' 4'' (2.75m x 1.63m) Double glazed sliding door. Welcome light. Double glazed doors to workshop / storage and entrance hall.

Workshop / Storage

8' 11'' x 11' 8'' (2.72m x 3.56m) Shelving. Work top. Sink. Door to the rear garden.

Entrance Hallway

6' 2'' x 13' 5'' (1.88m x 4.09m) Laminate flooring. Radiator. Storage cupboard. Stairs to first floor.

Downstairs W.C.

6' 1'' x 2' 11'' (1.87m x 0.89m) Low level wc and wash basin. Radiator. Extractor fan.

Living Room

11' 9'' x 16' 10'' (3.6m x 5.15m) Double glazed sliding door to the conservatory. Feature fire surround with electric fire. Laminate flooring. Ceiling coving and rose.

Conservatory

9' 0'' x 10' 5'' (2.76m x 3.2m) Double glazed conservatory with brick built base. Double doors lead out to the rear garden. Tiled floor. Fan light.

Dining Room

9' 8'' x 9' 1'' (2.96m x 2.78m) Double glazed oriel bay window to the front aspect. Ceiling coving and rose. Laminate flooring. Radiator.

Kitchen

8' 2'' x 9' 2'' (2.5m x 2.8m) Fitted with a range of wall, drawer and base units. Laminate work surfaces incorporate a sink and drainer. Spaces for a cooker, washing achine and under the counter fridge. Extractor hood. Part tiled walls and tiled floor. Radiator. Double glazed oriel bay window to the front aspect.

First Floor

First Floor Landing

6' 0'' x 10' 10'' (1.85m x 3.31m) Double glazed window to the side elevation. Storage cupboard housing 'combi' boiler. Loft access point.

Bedroom

10' 2'' x 13' 5'' (3.1m x 4.1m) Double glazed window to the rear elevation. Radiator. Fan light.

Bedroom

9' 8'' x 12' 7'' (2.96m x 3.86m) Double glazed window to the front elevation. Fitted wardrobes and dressing table. Radiator. Fan light.

Bedroom

8' 3'' x 9' 3'' (2.54m x 2.84m) Double glazed window to the front elevation. Radiator.

Shower Room / W.C.

7' 10'' x 5' 4'' (2.41m x 1.65m) Walk-in shower with electric shower and dual shower head. Laminate wet wall. Low level wc and wash basin. Radiator and towel heater. Vinyl flooring. Double glazed window to the side elevation.

Exterior

External

Now to explore outside. Externally, the front of the home features a concrete imprinted driveway which runs alongside a front garden with shrubs and plants.

To the rear, discover a lovely south-facing garden designed with low-maintenance living in mind. Artificial lawn ensures a lush green outlook throughout the seasons, complemented by thoughtfully arranged slate beds. There"s an abundance of potential for enthusiastic gardeners or those looking to personalise their outdoor haven;simply add pots and shrubs to introduce splashes of colour, texture, and create striking focal points to enjoy sunny afternoons. The south-facing aspect is perfect for those who relish basking in the natural light, whether entertaining or unwinding in tranquillity.

EPC Graph

Additional Information

For further information on this property please call 0161 260 0444 or e-mail [email protected]

Share this property

EPC Graph

Administration Fees

Summary

Situated on the well regarded "Racecourse" development in Hazel Grove, number 30, a well presented THREE BEDROOM LINK DETACHED HOME, offers a fantastic opportunity to put your own touch on a much loved and cared for family home.

For around three decades, this three-bedroom link detached home has been a cherished haven; the pride and joy of its owners and caring guardians. It is now ready for its next chapter, a special place which you could call home and create memories.

Come in! Step into the spacious porch which is handy to deposit an assortment of things; from coats and shoes to prams and children"s bikes!

Cross the threshold into the entrance hallway with staircase leading to the first floor. The hall is a gateway to the spacious living room to the rear or to kitchen to the front. Also off the hall, there is a downstairs w.c.

The dining room is situated to the front and can be accessed from the kitchen or the living room. Visionaries, when you see the floor plan, you might explore the option of uniting the kitchen with the dining space for an impressive open-plan layout.

To the rear of the living room, the conservatory is a versatile space. It is a light, bright retreat that takes full advantage of garden views, perfect for leisurely summer afternoons or cosy winter evenings alike. It is a lovely spot for a morning brew or unwinding in the day or evening come rain or shine.

Back to the hall now. Head up the stairs to the landing with doors to the three well proportioned bedrooms. The third bedroom stands out with its unusually spacious proportions, offering more space than most. Also on the first floor you will find the modern shower room/w.c. with a stylish contemporary wet wall finish.

Throughout, the layout feels both flexible and practical.

Now to explore outside. Externally, the front of the home features a concrete imprinted driveway which runs alongside a front garden with shrubs and plants.

To the rear, discover a lovely south-facing garden designed with low-maintenance living in mind. Artificial lawn ensures a lush green outlook throughout the seasons, complemented by thoughtfully arranged slate beds. There"s an abundance of potential for enthusiastic gardeners or those looking to personalise their outdoor haven;simply add pots and shrubs to introduce splashes of colour, texture, and create striking focal points to enjoy sunny afternoons. The south-facing aspect is perfect for those who relish basking in the natural light, whether entertaining or unwinding in tranquillity.

The property is within easy reach of the many amenities of Hazel Grove, transport links and schools. A small parade of shops including a convenience store, for those every day essentials, are situated a stroll away on Chepstow Drive.

Nature lovers and the outdoorsy types are spoiled for choice: Torkington Park can be found a mile away, ideal for a weekend walk or a spell on the playground, whilst the National Trust's Lyme Park is around five miles and promises stunning expanses for adventure and discovery amid beautiful countryside scenery.

This is a wonderful opportunity to acquire a long admired home in a well regarded location. We look forward to hearing from you.

Key Features


  • Link Detached Home
  • Good size living room
  • Conservatory
  • Downstairs W.C.
  • Walk-In shower room
  • Three well proportioned bedrooms
  • Separate dining room
  • Kitchen
  • Storage
  • Front & rear gardens

Share this property

Rightmove Zoopla Ombudsman