Valuation
4 Bedroom Detached For Sale in Raisbeck Road, Offerton, Stockport, SK2 7BF - Stockport Estate Agency, Hazel Grove, Great Moor, Offerton, Heaviley, Mile End, Woodsmoor, Davenport, Marple, Stockport, Cheshire Estate Agency

4 Bedroom Detached For Sale   |   Raisbeck Road, Offerton, Stockport, SK2 7BF   |    £475,000

Summary

Located on the well regarded Bellway Development, this stunning double fronted detached home offers an outstanding standard of living on one of the area"s well regarded developments . Boasting an enviable EPC rating of A, this property not only provides energy-efficient comfort but is also an ideal choice for families and professionals seeking a home with long-term cost savings at its core. The home is being offered Freehold.

Step through the front door and you"ll be welcomed by a spacious, inviting hallway complete with an elegant turned staircase leading to the first floor. On one side, a flexible reception room offers endless possibilities; perfect as a media room, peaceful home office, or a cosy snug. On the opposite side is the generous and stylish living room, providing the ideal spot for relaxation. The contemporary open-plan dining kitchen is thoughtfully situated across the rear of the home, designed in a white high gloss finish that reflects light throughout the space. Modern, integrated appliances are already fitted, while a useful utility cupboard with plumbing for a washing machine is thoughtfully concealed for convenience. Patio doors open directly to the rear garden, creating a seamless connection to the outdoors; ideal for entertaining when social gatherings spill outside.

Upstairs, a naturally-lit galleried landing leads to four fitted double bedrooms; perfect for families seeking well proportioned space. The principal bedroom is particularly impressive, complete with its own en-suite shower room. A contemporary family bathroom serves the remaining bedrooms, creating balance and practicality for daily routines.

Outside, a manicured front garden frames the approach to this attractive home, while a lengthy private driveway extends alongside the house leading to a detached garage, offering ample parking and additional storage. To the rear, an Indian stone patio leads onto a well-kept lawned garden, creating the perfect sanctuary for summer barbecues or simply unwinding.

This popular Bellway Development enjoys a convenient location for schools, shopping, cafes, pubs, and essential services. For the outdoorsy type, Torkington Park and Woodbank Park are within two miles. Excellent transport links make access to nearby towns and city centres straightforward, whether commuting by car or public transport.

This tastefully presented, thoughtfully designed, and conveniently located home truly offers the best in modern, turnkey family living. We look forward to hearing from you to arrange a viewing.


  • DETACHED FAMILY HOME
  • EN-SUITE SHOWER ROOM
  • SOURTHERLY ASPECT TO THE REAR
  • TWO SEPARATE RECEPTION ROOMS
  • DETACHED GARAGE
  • FOUR WELL PROPORTIONED BEDROOMS
  • FOUR PIECE FAMILY BATHROOM
  • OPEN PLAN KITCHEN / DINING ROOM
  • DOWNSTAIRS W.C.
  • FREEHOLD TENURE

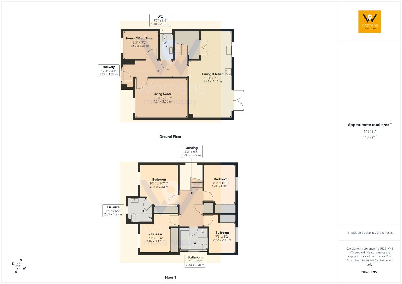
Ground Floor

Entrance Hall

17' 3'' x 4' 4'' (5.27m x 1.33m) Composite front door opening into A sizeable and inviting entrance hall, elegantly styled an setting the theme for the cohesive simple, stylish presentation throughout.
Fitted welcome mat area to a tiled floor which flows seamlessly into the kitchen. Radiator. Doors to the living room, office, downstairs w.c. and an opening to the dining kitchen. Turned staircase to the first floor.

Home Office/ Snug

9' 5'' x 7' 6'' (2.89m x 2.31m) A versatile space. UPVC double glazed window to the front. Radiator.

Living Room

13' 10'' x 10' 7'' (4.24m x 3.25m) UPVC double glazed window to the front. Radiator.

Downstairs w.c.

3' 7'' x 6' 6'' (1.1m x 2m) Part tiled walls. Low level W.C. Radiator. Wash hand basin. UPVC double glazed window to the side. Tiled floor.

Dining Kitchen

11' 3'' x 23' 3'' (3.45m x 7.1m) An open-plan dining kitchen with a tiled floor set against the white high gloss cabinetry. Wall, base and drawer units including a run of floor to ceiling units integrating the fridge and freezer and ovens along with additional storage space. Integrated dishwasher. Built in hob with an extractor over. Work surfaces. Integrated wine cooler. UPVC double glazed window to the rear. Space for a dining table. UPVC double doors opening to the rear garden. Utility cupboard with plumbing for a washing machine.

First Floor

Landing

6' 2'' x 9' 8'' (1.88m x 2.97m) A good sized, naturally it galleried landing. Access to the loft (via pull down ladders to a boarded loft for storage). Doors to each bedroom. Door to the family bathroom/w.c. Spindle balustrade. UPVC double glazed window to the side. Radiator.

Main Bedroom

10' 4'' x 10' 10'' (3.16m x 3.32m) A good size main bedroom boasting fitted wardrobes with sliding doors. Radiator. UPVC double glazed window to the front. Door to the en-suite shower room/w.c.

En-suite Shower Room/W.C.

6' 7'' x 6' 5'' (2.03m x 1.97m) Fully tiled shower cubicle. Low level w.c. Wash hand basin. Part tiled walls. Chrome effect heated towel rail. UPVC double glazed window to the front.

Bedroom

8' 7'' x 10' 8'' (2.63m x 3.26m) UPVC double glazed window to the rear. Radiator. Fitted wardrobe with sliding doors.

Bedroom

8' 0'' x 10' 4'' (2.46m x 3.17m) Fitted wardrobe with sliding doors. Radiator. UPVC double glazed window to the front elevation.

Bedroom

7' 3'' x 8' 2'' (2.22m x 2.51m) Fitted wardrobe with sliding doors. Radiator. UPVC double glazed window to the front.

Exterior

Outside

Outside, a manicured front garden frames the approach to this attractive home, while a lengthy private driveway extends alongside the house leading to a detached garage, offering ample parking and additional storage. To the rear, an Indian stone patio leads onto a well-kept lawned garden, creating the perfect sanctuary for summer barbecues or simply unwinding.

EPC Graph

Additional Information

Tenure: To be sold as Freehold (the vendor has commenced the purchase of the freehold)
Service Charge:
EPC: Band A
Council Tax: E
Flood Risk: Very Low
Mobile and broadband available dependent upon provider.
Please note: Material Information has been sourced from 3rd party sources. We recommend that you seek verification yourself too, of course.
Material Information: Any Information added by us has been obtained from Land Registry or Sprift, who in turn collect their information from The Land Registry and Local Government sources when relevant. We strongly advise before purchasing you check this data is correct as we cannot be held responsible for displaying the sourced information which may then turn out to be incorrect. Instances of incorrect information may be where the Land Registry has a time lag and the owner of a property has purchased the Freehold but this has not been registered yet, or where the details of the Leasehold are not obvious on the Land Registry. Human error can also account for information being incorrect and we are unable to verify if the data is correct due to how the Land Registry works. Please note, some websites might block our attempts to provide you with links to the relevant information sources, so please contact our office if you need these.

For further information on this property please call 0161 260 0444 or e-mail [email protected]

Share this property

EPC Graph

Administration Fees

Summary

Located on the well regarded Bellway Development, this stunning double fronted detached home offers an outstanding standard of living on one of the area"s well regarded developments . Boasting an enviable EPC rating of A, this property not only provides energy-efficient comfort but is also an ideal choice for families and professionals seeking a home with long-term cost savings at its core. The home is being offered Freehold.

Step through the front door and you"ll be welcomed by a spacious, inviting hallway complete with an elegant turned staircase leading to the first floor. On one side, a flexible reception room offers endless possibilities; perfect as a media room, peaceful home office, or a cosy snug. On the opposite side is the generous and stylish living room, providing the ideal spot for relaxation. The contemporary open-plan dining kitchen is thoughtfully situated across the rear of the home, designed in a white high gloss finish that reflects light throughout the space. Modern, integrated appliances are already fitted, while a useful utility cupboard with plumbing for a washing machine is thoughtfully concealed for convenience. Patio doors open directly to the rear garden, creating a seamless connection to the outdoors; ideal for entertaining when social gatherings spill outside.

Upstairs, a naturally-lit galleried landing leads to four fitted double bedrooms; perfect for families seeking well proportioned space. The principal bedroom is particularly impressive, complete with its own en-suite shower room. A contemporary family bathroom serves the remaining bedrooms, creating balance and practicality for daily routines.

Outside, a manicured front garden frames the approach to this attractive home, while a lengthy private driveway extends alongside the house leading to a detached garage, offering ample parking and additional storage. To the rear, an Indian stone patio leads onto a well-kept lawned garden, creating the perfect sanctuary for summer barbecues or simply unwinding.

This popular Bellway Development enjoys a convenient location for schools, shopping, cafes, pubs, and essential services. For the outdoorsy type, Torkington Park and Woodbank Park are within two miles. Excellent transport links make access to nearby towns and city centres straightforward, whether commuting by car or public transport.

This tastefully presented, thoughtfully designed, and conveniently located home truly offers the best in modern, turnkey family living. We look forward to hearing from you to arrange a viewing.

Key Features


  • DETACHED FAMILY HOME
  • EN-SUITE SHOWER ROOM
  • SOURTHERLY ASPECT TO THE REAR
  • TWO SEPARATE RECEPTION ROOMS
  • DETACHED GARAGE
  • FOUR WELL PROPORTIONED BEDROOMS
  • FOUR PIECE FAMILY BATHROOM
  • OPEN PLAN KITCHEN / DINING ROOM
  • DOWNSTAIRS W.C.
  • FREEHOLD TENURE

Share this property

Rightmove Zoopla Ombudsman